Bei Bebauungsplänen für Vorhaben, für die nach dem UVP-Gesetz eine Umweltverträglichkeitsprüfung durchzuführen ist, hat die Gemeinde gemäß § 2a BauGB in einer Begründung einen
Umweltbericht aufzunehmen, wobei die UVP als unselbständiger Teil in das Bebauungsplanaufstellungs-verfahren integriert wird.
3. Beispielprojekt
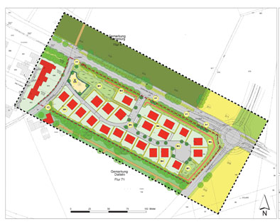
Umweltbericht zum Bebauungsplan in Datteln
Die Stadt Datteln beabsichtigte, eine landwirtschaftlich genutzte Fläche zu bebauen. Dazu wurde ein Umweltbericht einschließlich Festsetzung der grünordnerischen Belange und die Ausführungsplanung mit Begrünung des Wohngebietes und die Erstellung eines Kinderspielplatzes in Auftrag gegeben.
Der inhaltliche Aufbau des Umweltberichtes gliedert sich entsprechend der Anlage zu § 2 Abs. 4 und § 2a BauGB. In der Ausführungsplanung wurden die im Bebauungsplan festgesetzten Maßnahmen konkretisiert. Insbesondere die Begrünung des Straßenraumes, die oberflächennahe Abführung des Niederschlagswassers in Mulden zu den Rückhalteflächen, die Lärmschutzwand-/wall-Begrünung sowie die Gestaltung des wohnungsnahen Spielgeländes werden thematisch aufbereitet.
4. Beispielprojekt
Umweltbericht zu einem Bebauungsplan in Dortmund-Hörde

Biotoptypen

Maßnahmenplanung
Der vorhabenbezogene Bebauungsplan in Dortmund-Hörde umfasst eine ca. 9,18 ha große Fläche, die aus dem eigentlichen Plangebiet (4,8 ha) und externen Ausgleichsflächen besteht.
Eine Wohnungsbaugesellschaft hat sich mit der Absicht, ein Bauvorhaben mit generationsübergreifenden Wohnformen zu entwickeln, diesem Verfahren angeschlossen.
In dem Umweltbericht sind alle Belange des Natur- und Landschaftsschutzes in ihrem Bestand und den zu erwartenden Auswirkungen dargelegt worden.
Über verschiedene Schutz- und Gestaltungs-Festsetzungen ist die Eingrünung der Planungsvorhaben im Bebauungsplan sichergestellt.
Regelungsbedarf ergab sich zum Schutz vorhandener Gehölze, zur Eingrünung des Straßenraums und der privaten Grundstücke, zur Drosselung des Niederschlagwassers in einem Rückhaltesystem, zum Kinderspiel und zu den öffentlichen Grünflächen.
Umfangreiche Ausgleichsmaßnahmen dienen zur vollständigen Kompensation des Eingriffs in Natur und Landschaft.

5. Beispielprojekt
Umweltbericht "Herdes Gartencenter"/ Dortmund
Für den Bau eines großflächigen Einzelhandelbetriebes wurde nach UVPG (Anlage 1, 18.6) ein Umweltbericht gefordert.
Konfliktschwerpunkte des geplanten Gartencenters ergaben sich aus der Lage in einem schmalen Freiraumkorridor zwischen Siedlungsflächen, der als Teillebensraum bedeutsam für bestimmte Tierarten ist.
Eingriffsintensität und Konfliktverminderung waren schwerpunktmäßig zu analysieren und die Kompensationsmöglichkeiten im Umfeld der Baumaßnahme zu sondieren.
Auf der Basis einer anspruchsvollen Entwurfsplanung von Büro Drahtler / Dortmund wurden alle stadtökologisch wirksamen Maßnahmen wie Dach- und Fassadenbegrünung, dezentrale Versickerungssysteme, versickerungsfähige Bodenbeläge, etc. in engmaschiger Abstimmung berücksichtigt und so eine städtebaulich ansprechende und ökologisch vertretbare Gewerbenutzung konzipiert.

Ausschnitt der Bestands- und Konfliktkarte
